一品楼凤万花楼栖凤楼茶楼论坛官网入口 ,深圳罗湖桑拿浦神论坛广州桑拿网蒲友论坛最新活动 ,凤楼阁论坛官网入口网址,栖凤楼品茶官方网站入口登录

消防应急照明与疏散指示系统解决方案!

栏目:解决方案 作者:三水智能化 发布时间:2020-07-13 关键词:
分享到:
建设现状近年来,建筑物火灾事故频发,在给人民群众生命财产安全带来重大损失的同时,也为建筑物内部的消防系统提出了警示。在火灾中对人员疏散、消防作业提供照明、疏散指示的消防应急照明以及疏散指示系统进行优化设计,愈来愈引起人们的高度重视。然而,受技术发展、

>建设现状

近年来,建筑物火灾事故频发,在给人民群众生命财产安全带来重大损失的同时,也为建筑物内部的消防系统提出了警示。在火灾中对人员疏散、消防作业提供照明、疏散指示的消防应急照明以及疏散指示系统进行优化设计,愈来愈引起人们的高度重视。然而,受技术发展、投资成本等因素制约,传统的消防应急照明系统存在响应速度慢、稳定性较差、检修维护工作量大等不足,新修订的《建筑设计防火规范》(GB 50016-2014)对消防应急照明和疏散指示系统提出了更高的要求,为消防应急照明和疏散指示系统的智能化发展提供了新的契机。

根据消防应急照明与疏散指示系统的设计原理和要点,并通过厂区工程设计应用证实其应用价值和应用前景??梢栽ぜ?,伴随着安全设计生产意识的不断提高、智能技术的不断发展,消防应急照明和疏散指示系统独立、快速响应的特征将更加明显,必将在未来的工程实践中得到广泛应用。

>方案介绍

本方案的适用对象包括但不限于高层化、大型化、复杂化、密集的建筑类型和场所。主要是提供人员疏散、逃生、减少损失等方案。

智能应急照明和疏散指示系统采用集中监控方式,通过信息技术、计算机技术和自动控制技术对建筑内消防安全通道进行实时监控,以达到安全疏散智能化的目的。该系统24h不间断对设备进行巡检,保证整个系统在最佳状态;通过与火灾自动报警系统联动,获悉现场火警信息,对疏散指示标志进行控制动态调整逃生方向,使逃生人员安全、准确、迅速地选择安全通道逃生。

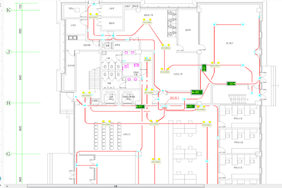
>系统架构

1-200G1113A6221.png

>功能特性

1、集中监控特性

(1)电池持续时间监视

可借助于可编程序来准确测试电池应急持续时间,从而保证蓄电池容量能够达到使用要求。

(2)主动动态监视

可借助于编程周期性检测系统的动态功能,并且对故障报警进行准确记录,保证设备正常运行。

(3)被动静态监视

可对如下子系统进行监控:照明灯具、消防应急标志灯具、应急照明集中电源、应急照明控制器。通过运行状态监视功能,一旦发现设备出现故障,立即通过系统架构的网络上报到主机,并显示在软件操作的界面上,同时发出声光报警以提醒监控人员,节约人力物力,消除疏散逃生的盲区。

2、集中控制特性

(1)强制点亮功能

一旦火灾探测器探测到火灾发生,就将火灾信号返回给消防中心报警主机。报警主机一经确认火灾发生,就把信号经消防联动控制及返回信号转换后传送给监控主机,监控主机立即对底层设备发送指令,强行启动安全疏散通道内的消防应急灯和疏散指示灯,形成一条完整的疏散照明指示线路。

(2)疏散导向功能

预先制定完整的疏散方案,对火灾区域进行相关设置引导,防止逃生者进入火灾区域,对可用安全出口进行标识,从而引导逃生者顺利逃生。也可手动对疏散标志灯具进行左向、右向指令调整。

>应用价值

1、舒畅的安全出口

智能疏散指示系统可以根据出口的人流量合理的调整疏散路线,尽可能确保安全出口的畅通。

2、可靠的疏散装置  

发生火灾等突发性事故时由于正常照明电源切断,建筑内唯一的光源就是应急灯具,可靠地疏散装置可以确保人们能够顺利安全地进行疏散。

3、简单明了的疏散路线   

系统依据建筑物将来的实际使用情况,发生火灾等突发性事故时,现场人们的心理与行动特点,易燃物燃烧值得大小、建筑物容纳人数、防火分区以及楼层面积的大小合理布设应急灯具等疏散设施,为人员的安全逃生规划最佳的安全疏散线径,确保突发性状况下所有受困人员能够尽可能多的疏散到安全区域或者到达安全的避难场所。

>标准要求

(GB 50034-2013) 《建筑照明设计标准》

(GB 50016-2014) 《建筑设计防火规范》

(JGJ 16 - 2008)    《民用建筑电气设计规范》

(GB 50116- 2013)《火灾自动报警系统设计规范》

(GB 17945- 2010)《消防应急照明和疏散指示系统》